NOUVEAU à Rillieux-la-Pape (Lyon Nord)
Pôle Santé La Canopée
Des locaux adaptés aux professionnels de santé, des atouts pour s’installer.
329M2 de pôle santé au cœur de la ville nouvelle
CARRE PRO Immobilier, marque de l’immobilier professionnel de la SEMCODA, lance la commercialisation de 329 m² de 8 à 9 cabinets médicaux proposés à la location au sein du nouveau Pôle Santé La Canopée.
Situé au pied de la résidence neuve RESEDA La Canopée, comprenant 84 logements destinés à un public retraité, ce nouvel espace s’implante au cœur de la ville nouvelle des Alagniers, à seulement 10 minutes de Lyon centre.
Des locaux adaptés aux professionnels de santé
Disponibles printemps 2027, ces surfaces professionnelles et leurs aménagements ergonomiques et chaleureux, sont idéales pour votre installation, en libéral ou en société, tout est possible.
Conformes aux normes PMR et ERP, elles bénéficient d’une accessibilité optimale en rez de chaussée, de places de stationnement en sous-sol pour les professionnels occupants, et d’une situation privilégiée au pied de la résidence.
Idéal pôle santé ou installation individuelle
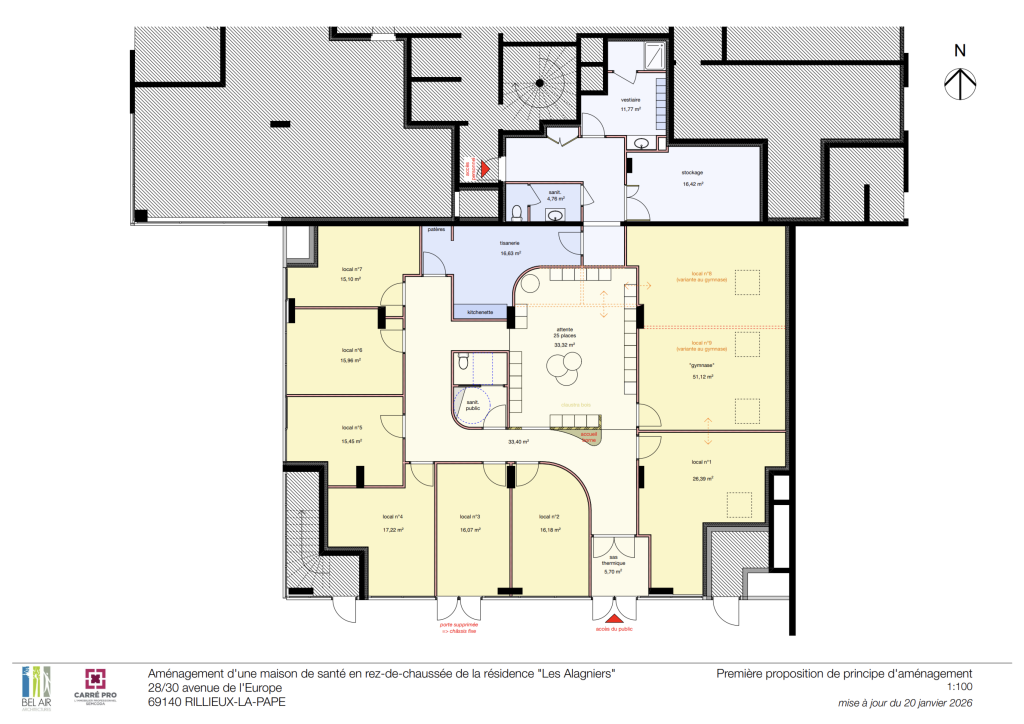
• Surface modulable de 329 m² pouvant accueillir de 8 à 9 cabinets médicaux, dont un grand cabinet.
• Locaux communs partagés pour une meilleure cohésion : salle d’attente, salle de convivialité réservée aux professionnels, locaux techniques (stockage, vestiaire avec douche)
• Loyer : à partir de 16.50 € HT/HC le m² (hors mobilier professionnel et prestations spécifiques liées à l'activité).
Découvrir le plan du Pôle Santé
Un projet inclusif au service des seniors et de la santé locale
Ce programme immobilier innovant, construit par VINCI Immobilier Auvergne Rhône Alpes et géré par la SEMCODA, combine les 84 logements de la Résidence RESEDA La Canopée (du T1 au T3) et les locaux de santé.
En plus de leurs appartements, les résidents bénéficient d’espaces partagés (2 salles commune de rencontres et d’activités, jardins suspendus sur le toit-terrasse) tandis que les surfaces professionnelles en pied de résidence offrent une grande visibilité et une opportunité unique de développer une offre de santé locale complète.
Une ville dynamique qui porte ce projet
« Rillieux-la-Pape soigne son offre de soins en renforçant l’accès aux professionnels de santé au plus près des seniors » : ce projet emblématique du renouveau urbain du quartier des Alagniers illustre la volonté de la municipalité.
Les futurs praticiens s’inscriront dans un écosystème de santé structuré : 18 médecins généralistes, 2 MSP, 1 polyclinique avec urgences, 1 Centre Médical de Soins Immédiats, 1 CPTS et une mairie impliquée via une Société Coopérative d’Intérêt Collectif dédiée aux services pour les médecins généralistes.
Une adresse au cœur de la vie métropole
Rillieux-la-Pape est une ville interface, porte d’entrée nord de la Métropole de Lyon, à la croisée des espaces urbains et des zones rurales du Val de Saône et de l’Ain, bénéficiant d’un environnement naturel et agricole de qualité.
C’est aussi une ville connectée, desservie par les autoroutes, les gares TER et les lignes TCL, avec un accès rapide à l’aéroport Saint-Exupéry et aux gares lyonnaises.
À propos de la SEMCODA
SEMCODA est un acteur majeur de l’immobilier social en Auvergne-Rhône-Alpes, gestionnaire d’un important parc de logements, d’équipements, de surfaces professionnelles et développeur de projets inclusifs et durables.
CARRÉ PRO l'immobilier professionnel SEMCODA
Votre avenir ? Vous l’envisagez, nous le rendons possible.
Locaux commerciaux, locaux professionnels, cabinets médicaux, crèches, EHPAD, gendarmeries…
Jour après jour carré pro immobilier construit pour vous des m² intelligents.
Rejoignez un environnement de travail stimulant et développez votre patientèle dans les meilleures conditions !
Adresse du programme
Espace Santé La Canopée
28-30 avenue de l’Europe
69140 Rillieux-la-Pape
Visites sur Rendez-vous
Rencontrons-nous pour en parler !
Si vous avez des questions ou souhaitez en savoir plus, remplissez le formulaire ci-dessous. Nous sommes là pour vous aider !
« * » indique les champs nécessaires
Téléphone
N'hésitez pas à nous appeler.




